Acheter un maison 6 pièces
de 137 m² à Nantes (44100)
590 425 € FAI
Réf. AGZ751
NOUVEAUTÉ L'ADRESSE. ENTRE PROCÉ / ZOLA.
Dans une rue recherchée, venez découvrir cette maison de charme datant de 1901, pleine de potentiel et idéalement située.
Elle séduit par son jardin clos de murs en pierre d'environ 200 m², un véritable havre de paix, ainsi que par son garage, parfait pour stationner vélos ou motos.
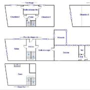
D'une surface de 137m², la maison se compose :
Au rez-de-chaussée : une entrée desservant un salon, une salle à manger, une cuisine ouverte sur la terrasse, un salon d'hiver, un bureau avec son accès indépendant et un WC.
Au 1er étage : un palier distribue deux grandes chambres et une salle de bains commune.
Au 2ème étage : une suite parentale récente avec salle d'eau, WC et dressing.
Un sous-sol d'environ 20 m² complète l'ensemble, idéal pour la chaufferie (chaudière récente) et la lingerie.
Des travaux de rafraîchissement sont à prévoir, mais l'isolation par les toits a déjà été réalisée. Un bien rare sur le secteur, au charme indéniable, offrant un bel emplacement et un beau potentiel à valoriser selon vos goûts.
Contactez nous dès aujourd'hui pour planifier une visite et découvrir ce bien immobilier par vous-même !
Les informations sur les risques auxquels ce bien est exposé sont disponibles sur le site Géorisques : www. georisques. gouv. fr
L'ADRESSE ZOLA by Coudray Lorraine - c'est 4 métiers : Gestion locative, Location, Syndic de Copropriété, Vente - Retrouvez nous sur www.coudraylorraine.fr ou sur www.ladresse-zola.com (4.50 % honoraires TTC à la charge de l'acquéreur.)
Informations complémentaires
- Type : Maison T6
- Nombre de chambres : 4
- Étage : -
- Nombre de pieces : 6
- Année : 1901
- Surface habitable : 137
- Salle(s) de bain : 1
- Salle(s) d'eau : 1
- Stationnement : -
- Chauffage : Individuel, Gaz
- Référence : AGZ751
Surfaces approximatives non vérifiées.
Dépenses énergétiques

